Este site utiliza cookies para permitir a mudança de língua e o armazenamento dos seus imóveis favoritos. Ao utilizar este site, concorda que o mesmo utilize cookies.

Condomínio para venda em Casalinhos de Alfaiata, Silveira

790.000€



Referência

RC2004-049

Natureza

Venda

Tipo de Imóvel

Moradia

Subtipo de Imóvel

Moradia Isolada

Tipologia

T4

Estado

Em Projecto

Certificado energético

B-


Distrito

Lisboa

Concelho

Torres Vedras

Freguesia

Silveira

Código Postal

2560-433


Área Útil

2745 m2

Área Bruta

3228.53 m2

Área de Terreno

3228.53 m2

Partilhar



Contactar Imobiliária

*Preenchimento obrigatório
Ao clicar em 'Enviar', declara que aceita a nossa Política de Privacidade.
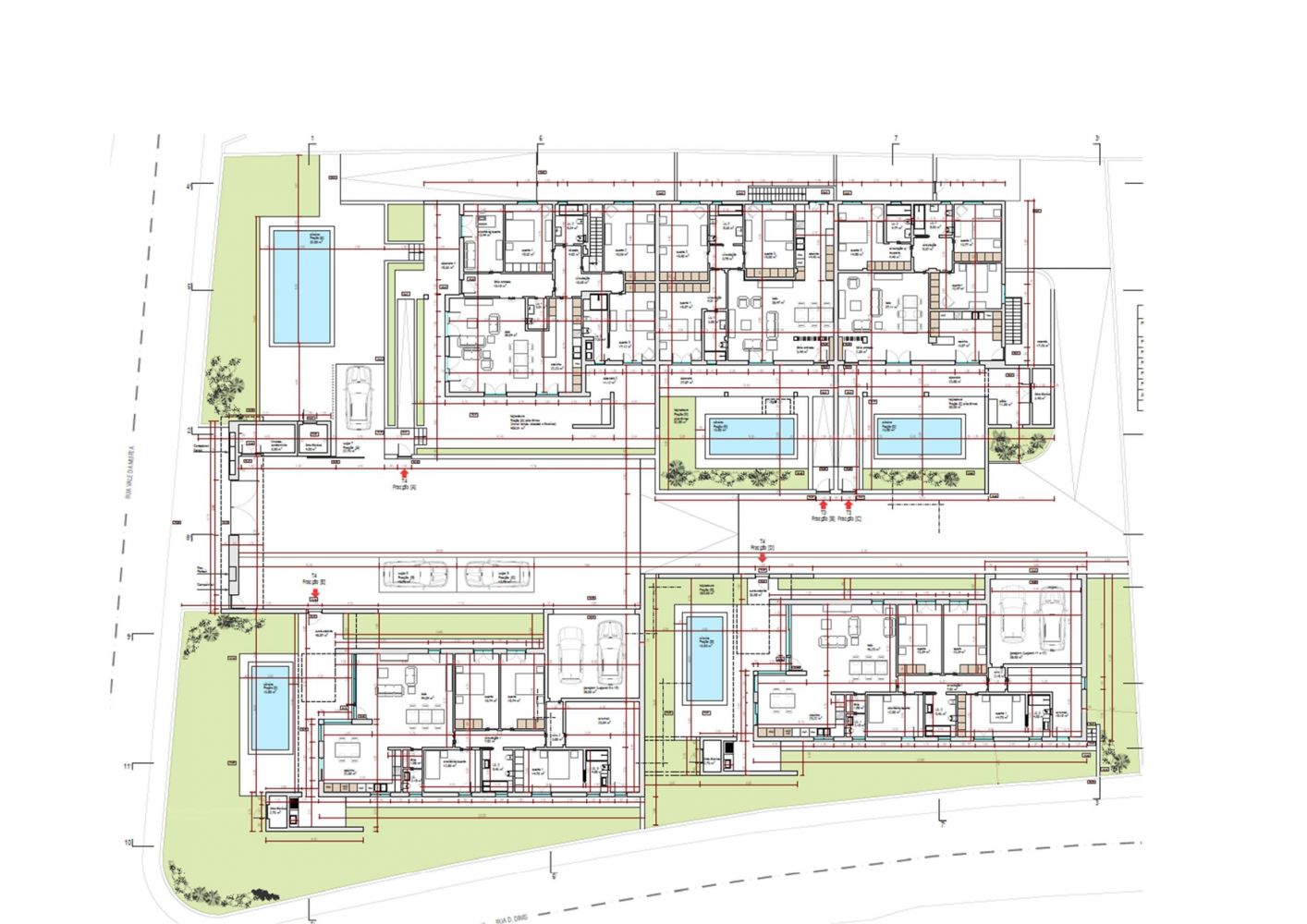
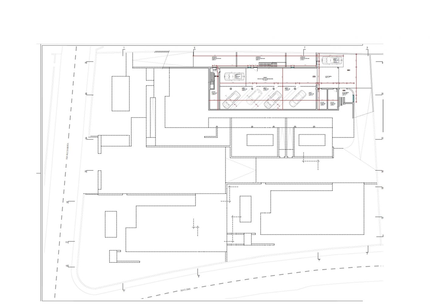
Excelente oportunidade para construção de um condomínio localizado em Casalinhos de Alfaiata, Silveira, muito próximo da cidade de Torres Vedras e a menos de 10 minutos da praia de Santa Cruz.

Com projecto aprovado e licença a pagamento, permitindo iniciar a construção de imediato, este condomínio dispõe de cinco moradias térreas, das quais  três geminadas com tipologias T3 e T4 e duas isoladas com tipologia T4, as mesmas incluem logradouro próprio, piscina, garagem e arrecadação.

Neste momento o lote existente, com uma área de 3228m2 engloba um solar com uma área de construção já existente de 926,69m2, estando prevista no projecto a transformação deste edifício existente em três moradias geminadas. As duas moradias isoladas serão implantadas na restante área com, respectivamente, áreas de construção de 242,64 e 254,10m2.

O projecto de construção aprovado pode ser consultado em anexo.

Venha visitar!

A informação facultada é meramente informativa pelo que não pode ser considerada vinculativa e está sujeita a alterações.
Geral
VistasCampo:Sim
Exposição SolarNascente:Sim
Exposição SolarPoente:Sim
GeraisNº de Casas de Banho:3
Edificio
Tipo de EmpreendimentoCondomínio fechado:Sim
Zona
ProximidadeBancos:Sim
ProximidadeFarmácias:Sim
ProximidadePadarias:Sim
ProximidadePraias:Sim
ProximidadeSupermercados:Sim
AcessosAlcatrão:Sim

Este imóvel não tem áreas definidas.

Imóveis
Semelhantes

Moradia
Venda
Oferta da Escritura

585.000€

Moradia T3 em Santa Cruz

585.000€

Lisboa / Torres Vedras / A dos Cunhados e Maceira


Ref: RC2004-048

Ref: RC2004-048

140.25 m2

3

3

Sim

Moradia
Venda

2.400.000€

Moradia Exclusiva à venda

2.400.000€

Lisboa / Torres Vedras / A dos Cunhados e Maceira


Ref: RC2002-065

Ref: RC2002-065

449.21 m2

5

5

Moradia
Venda
Oferta de Escritura

449.000€

Moradia T3+1 em Boavista, Silveira

449.000€

Lisboa / Torres Vedras / Silveira


Ref: RC2004-038

Ref: RC2004-038

150 m2

3

3

Sim